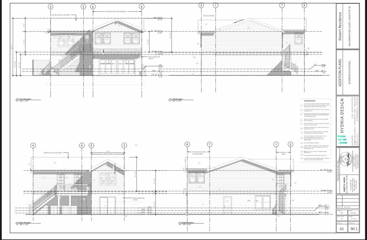
One-story Rear Addition
GAF Timberline HDZ Asphalt shingle
Addition to Include: One Bedroom
& One Full Bathroom
about this project
The renderings display the construction of an in-law suite at the back of the house, providing extra living space. Additionally, the home will be outfitted with a new GAF roof and CertainTeed Mainstreet vinyl siding for improved durability and curb appeal.
This addition will serve as a luxurious in-law suite, complete with a full bedroom and bathroom, featuring heated floors for added comfort and convenience.



