Our Projects
PROJECTS
COMING SOON...
Rumson Country Club
Heritage Builders is proud to restore this 80-year-old historic landmark with the enduring elegance of Vermont slate and the durable, high-performance James Hardie Siding.
River Road
This project features GAF Slateline Roofing and Maibec Canadian White Cedar Siding, along with the construction of an observatory tower for optiomal stargazing experiences.
The Lift
Heritage Builders executed a house lift by using a hydraulic machine to elevate the structure, and then carefully setting it onto the newly constructed foundation to ensure stability and a perfect fit.
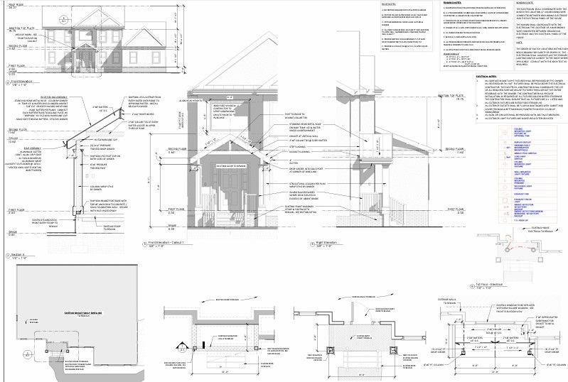
The Tornado
This house sustained significant damage from a tornado and is in the process of a full remodel. This project showcases plans for a complete renovation, giving the home a fresh start.
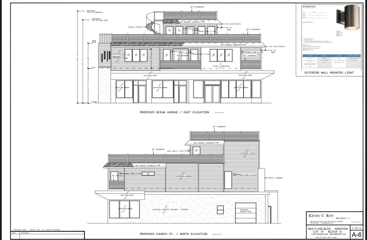
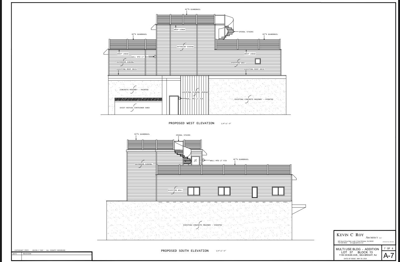
Ocean Ave Addition
This three-story addition in the heart of Seabright, will become a modern residential building, just steps away from the beach, offering residents a prime coastal living experience.
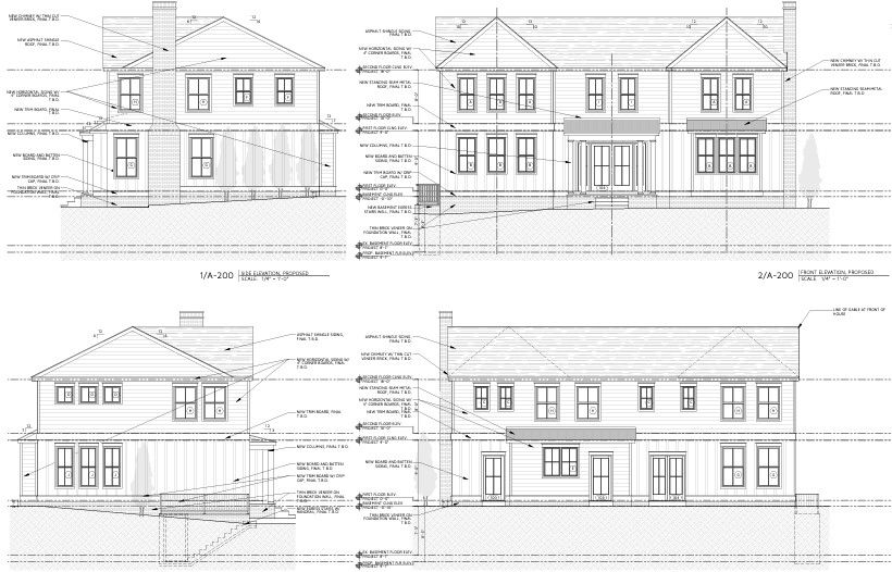
The In-Law Suite
This home will be raised onto a new foundation to improve its structural integrity. An in-law suite will be attached to the back of the house, providing extra space for family or guests.






































































